Паровой котел КПО 350
КПО
Паровой котел 500 кгп/час КПО ФАРТА
Паровые котлы серии "КПО" являются полустационарными горизонтальными системами с дымогарными трубами со вспомогательными приспособлениями. Для работы с данным типом паровых генераторов рекомендуется использовать дутьевые горелки, работающие на газе, дизельном топливе или газойле.
Паровые котлы ФАРТА отличаются надежностью, долгим сроком службы, высоким КПД и производительностью.
Технические характеристики:

*Температура питательной воды 80 °С
Температура на выходе дымовых газов (°С): газ=227, Дизельное топливо=230; Мазут =229.
_______________________________________________________________________________________________
Паровые генераторы "КПО" снабжены рядом вспомогательных устройств:
•защитными (предохранительные клапана, датчики уровня, реле давления)
•индикационными (датчики уровня, манометры, свет. индикатор пламени)
•регулировочными (датчик уровня, реле давления)
•устройствами для подачи воды (центробежный насос, инжектор или паровой возвратно-поступательный насос)
•устройствами для выполнения определенных операций (отсечные клапана; сливной клапан)
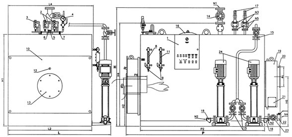
Габаритные размеры:

Фланцевое соединение дымохода
Генераторы укомплектованы электрической панелью управления (IP 55 уровень защиты) с полным комплектом вспомогательных устройств котла.
В каждом конкретном случае рекомендуется использовать двухступенчатую горелку или горелку модулирующего типа; таким образом, можно избегать чрезмерных перепадов давления в результате отбора пара со стороны потребляющих устройств.
Отправьте техническое задание на farta383@rambler.ru и получите техническую консультацию по генератору пара ФАРТА.
